Commercial Projects

Truck Sales Showroom, Auckland

CLIENT: TR Group Ltd

CONTRACT VALUE: $1m

Peter Swan Ltd completed this modern design on a prominent road frontage in a way that reflected Isuzu trucks strong brand identity.

isuzu-plan
isuzu2

Burger King National Rebranding

CLIENT: Antares Restaurant Group Ltd

CONTRACT VALUE: $15m

Peter Swan Ltd are working with Burger King to implement a 20/20 worldwide reimaging in an innovative way throughout New Zealand. This involves the construction of several new buildings and reimaging of existing restaurants.

MTLT12_21 compressed
IMG_1907
IMG_1857
IMG_1974
IMG_2019

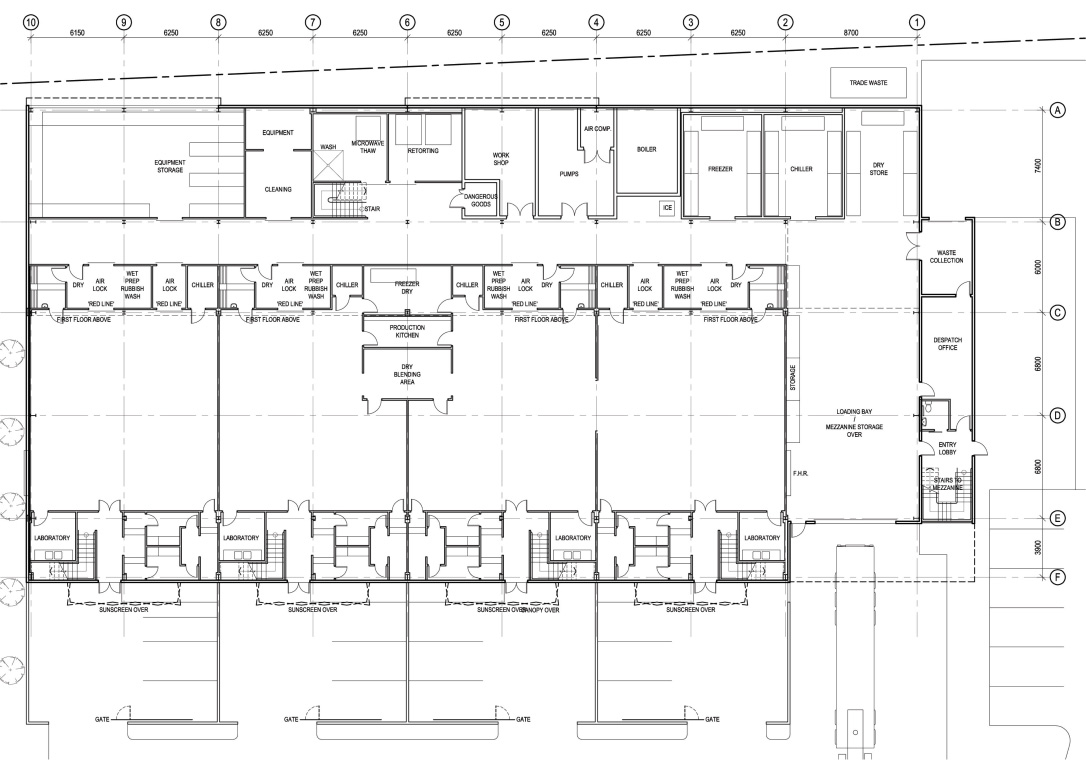
Manukau Food Innovation Centre

CLIENT: MFIC Establishment Board

CONTRACT VALUE: $8m

Peter Swan Ltd was chosen to design this facility due to our reputation for delivering effective built solutions in the food industry. The facility is a government driven New Zealand first and will be used to produce export quality new food products.

industrial design company

New Administration Building Facade

CLIENT: Fonterra Brands Ltd

Tip Top corner, Auckland

PSL provided an Engineering, Architectural and Project Management role to deliver a modernised new facade to Aucklands iconic ‘Tip Top corner’ facing the Southern motorway.

Watch the ‘evolution of Tip Top corner’ video here:

MG_6254_0
MG_6407fl_0
MG_6275

Retail and Childcare Development, Glen Eden Auckland

This new development is 1000m² of retail and an 800m² childcare facility completed in 2016. Peter Swan Ltd provided the ‘one stop shop’ services of Architecture, Structural and Service Engineering.

commercial construction nz

Hotel Upgrade

BAMR Scales Pacific
Nakhodka, Russia

Office Block and Amenities

Talley’s Fisheries Ltd
Westport, NZ

The Hub

Mangawhai Self Storage Ltd
Mangawhai, NZ

Office Block Expansion

Talley’s Fisheries Ltd
Motueka, NZ

Office Expansion & Truck Canopy

TR Group Ltd
Penrose, Auckland

New Zealand Food Innovation Centre

New Zealand Food Innovation NZFI (Manakau)
Auckland International Airport, NZ

New Office Block

TR Group Ltd
Penrose, Auckland